
State Street Apartment
This renovation explores spatial organization and material articulation in a small apartment with striking elevational views of the Chicago Loop. Domestic spaces intersect functions that support working and making, blending the creative environment of the workshop with the traditional living space of the apartment. An underused balcony is reimagined as a courtyard to provide a common and centralizing element for each room. A simple material palette is expressed as smooth or textured, thick or thin, rustic or refined. These variations articulate changes in space and program, creating moments that are distinct yet unified.
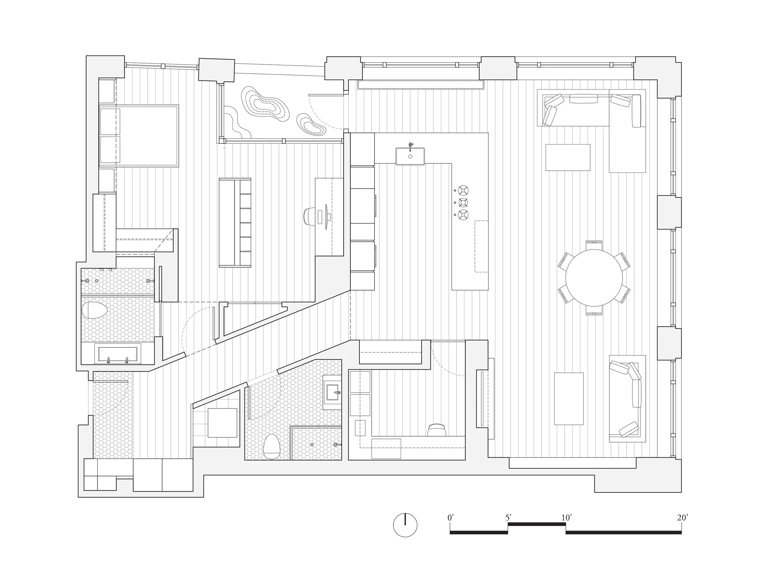
Within a footprint of just 1,600 square feet, the design accommodates an extensive, customized program. Traditional domestic functions are paired with new creative uses: a digital fabrication workshop, an interior garden illuminated by artificial light, and flexible walls and doors designed to foster ideation and making. The client sought an interior organization that would facilitate continuous movement between living, working, and leisure, without defaulting to either isolated rooms or an undifferentiated loft. The result is a spatial configuration where programmatic distinctions are articulated through bespoke millwork and subtle material shifts. Secondary elements—furniture, lighting, hardware, and controls—are carefully integrated into this material language. The architectural resolution is simultaneously reductive and expansive – refining the materials and elements within the design, while also multiplying uses and functions within the space.
Millwork is deployed to both harmonize and differentiate the apartment’s various programs. Facing the entry, a steel and perforated wood door conceals a mechanical closet for a new high-efficiency electric heat pump. Fluorescent colored pucks attach magnetically to recessed steel circles, creating a large-scale, analog version of a “Lite Brite” children’s toy that captures the apartment’s ethos of both concentration and play. This perforation motif is repeated in the hallway and workshop, where walls are clad in a custom CNC pegboard made from recycled paper products.
Elements that frame or support– whether a bed frame, the frame of a niche, or a cantilevered shelf – are articulated as thick, solid and structural. In contrast, elements that clad or cover are expressed as thin and veneered surfaces. A pattern of solid wood slats reconciles these two conditions by providing depth and thickness to a surface treatment. In the bathroom and entry, handmade tile and natural stone convey variation and texture in contrast to the uniform surfaces of lacquered millwork.
Two landscape interventions further unify and animate the space. A ten-foot-long planter box and linear light are suspended below a window, enabling year-round cultivation of herbs and greenery. Adjacent to this, the former balcony is reimagined as an artificial rock garden, visually connecting the bedroom, office, kitchen, and living room. These landscape elements mediate the relationship between the apartment’s interior life and the dramatic architectural elevations of Hammond, Beeby & Babka’s Harold Washington Library and William Le Baron Jenney’s Second Leiter Building, weaving the interior into the broader fabric of the city.
Awards
AIA Illinois Design Award 2023: Excellence in Interiors for Projects under 5,000 SF
Publications
Leslie Horn Peterson. “How They Pulled It Off: a Door Disguised as a Life-Size Lite-Brite” Dwell.com, August 8, 2024.
Thomas Connors. “Opposites Attract” Chicago Magazine, October 2024: 52-53.
Contemporary Living 2026 (8th Edition). Beta Plus Publishing (forthcoming)