
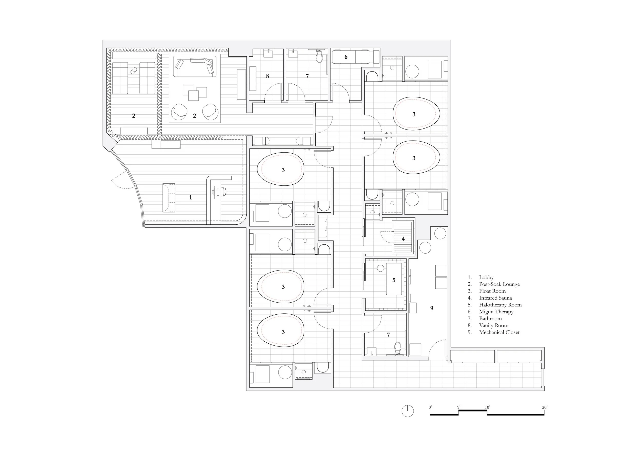
Spacetime Floatation Center
This project relocates and reimagines Spacetime, the oldest floatation center in the United States, integrating its established therapeutic practices into a newly designed architectural setting. Central to the program is float therapy—an experience of deep bodily suspension in a saline Epsom salt solution—supported by additional wellness amenities including infrared saunas and a halotherapy room. The design presents these treatments within an elemental and intimate setting that supports both communal and introspective experiences. The spa choreographs a transition from Chicago’s urban context to an interior environment of calm and quiet. This movement between spaces, along with the repetition of material and geometric elements, creates a sense of continuity and expectation throughout the spa experience.
The entry is defined by a curved and textured plaster reception area that peels out from lime washed walls. The space is separated by layers of sheer curtains, which allow glimpses into the post-float lounge areas. Natural light is gradually mixed with architectural lighting elements to create a gradual shift from bright daylight to the warm and ambient illumination of the spa’s treatment rooms. A recurring motif of curved forms, drawn from the sculptural geometry of the float vessels, appears across multiple scales and materials—from the radius of limewash walls to half-round reeding of the custom millwork and furniture. With the use of simple and natural materials, the design creates an elemental setting that is neutral and open-ended, accommodating diverse practices and experiences of the float treatment.
Given the high humidity and salinity, materials and detailing were selected for durability, longevity, and ease of maintenance. Climate control systems were designed to manage temperature and humidity levels individually, ensuring both user comfort and energy efficiency. Mechanical and accessory spaces, along with treatment rooms for other therapies, were carefully arranged between float rooms to allow for a private and seamless experience. The post-float lounge is divided by movable curtains, offering flexible zones for reflection or social gathering. The overall architectural language supports a broad range of uses and interpretations while centering the embodied experience of stillness, transition, and material quiet.
Publications
Sofia de la Cruz and Hannah Tindle. “Spa experiences in superlative surroundings, to revitalise mind and body” Wallpaper*, February 2, 2024.